Rodinný dom na predaj v lokalite Láb v okrese Malacky
Predaj 4 izbového bungalovu s krytou terasou v obci Láb (okres Malacky) - 10 km od Malaciek, 25 km od Bratislavy
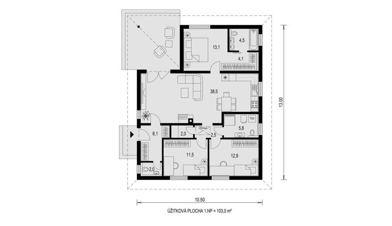
4 izby
2 kúpeľne
úžitková plocha: 103 m2
NOVOSTAVBA
3 parkovacie státia
Dispozičné riešenie domu:
- Zádverie 6,1m2
- Samostatné WC s umývadlom 2m2
- Kuchyňa prepojená s jedálňou a obývačkou 38,5m2 s výstupom na krytú terasu
- Špajza 2m2
- Izba 13,1m2 + šatník 4,1m2 + kúpeľňa 4,5 m2 (WC, 2 x umývadlo, vaňa)
- Chodba 2,5m2
- Izba 11,5m2
- Izba 12,9 m2
- Kúpeľňa 5,8 m2 (WC, umývadlo, sprchový kút)
Štandard dokončenia rodinného domu (holodom):
- tehla HELUZ UNI 30 brúsená hr. 300 mm so zateplením EPS polystyrénom hr. 180 mm, konečná úprava fasády – silikonová omietka, kamenný obklad
- vnútorné deliace priečky z tehál HELUZ hr. 115 mm a 175 mm
- komín šamotový HELUZ – príprava na krb
- Okná a dvere plastové s izolačným trojsklom, biele z interiéru, antracit z exteriéru,
- vonkajší parapet hliníkový antracitový, vnútorný plastový biely,
- príprava na vonkajšie žalúzie na el. pohon
- vnútorné omietky sadrové, 2x maľba bielej farby
- celková hrúbka skladby podlahy 250mm (160mm tep. izolácia, 60mm betónový poter, hydroizolácia proti zemnej vlhkosti 2x hydrobit VS60 S35)
- krytina strechy z betónových škridlíc – čierny lesk
- strešné žľaby a zvody z poplastovaného plechu, farba antracit
- strešná konštrukcia – drevený väzníkový krov, pochôdzná povala
- tepelná izolácia striekaná PÚ pena v strope hr. 360 mm, parozabrana,
- stropy so sadrokartónu, 2x maľba bielej farby, výklopné stropné schody na povalu
- podlahové elektrické kúrenie, elektrický ohrev TÚV
- elektroinštalácia ukončená vypínačmi a žiarovkami (bez svietidiel), bleskozvod
- kabeláž na zabezpečovací systém, domáci videovrátnik
- internet optický kábel
- príprava na klimatizáciu, príprava na fotovoltaiku
- všetky vonkajšie prípojky s revíznymi šachtami a samostatným meraním
- chodníky a terasa so zámkovej dlažby,
- oplotenie pozemku poplastovaným pletivom,
- oplotenie od ulice: bránička s videovrátnikom, príprava na otváraciu bránu, lamelová kovová výplň antracitovej farby
- plocha na parkovanie zo zatravňovacích tvárnic
- odkvapové chodníky po obvode domu z okrasného kameňa fr. 32 - 64 mm
- trativody ku všetkým strešným zvodom
- v záhrade príprava na závlahu a upravený, zarovnaný terén
Inžinierske siete: voda, elektrina, kanalizácia, optika
Dom je súčasťou moderného rezidenčného projektu, ktorý ponúka príjemné bývanie v štyroch samostatne stojacich 4-izbových rodinných domoch s vlastnou príjazdovou komunikáciou. Každý dom ma 3 vlastné parkovacie miesta. Obytná zóna sa nachádza v tichej lokalite na konci Leknovej ulice obce Láb.
Obec Láb sa nachádza 25 km od Bratislavy a 10 km od Malaciek. V obci je kompletná občianska vybavenosť. Materská škola, základná škola s novou prístavbou jedálne, zdravotné stredisko, lekáreň, pošta, futbalové ihrisko, multifunkčné ihrisko, obchody, reštaurácie. Obec je svojou polohou zasadená v kľudnej oblasti, obklopená borovicovými lesmi a jazerami, kde je možné tráviť voľný čas prechádzkami, bicyklovaním a inými voľnočasovými aktivitami.
Výmera pozemku: 486 m2
Cena: 312 tis. Euro
Kontakt: Feranec, mobil 0918 810 625
Podrobné informácie
Poloha nehnuteľnosti na mape
Leknová, Láb, Malacky, Slovensko
